

Типовой проект дома от Z500 включает два раздела - Архитектурный (АР) и Конструктивный (КР). По желанию заказчика в проектную документацию можно включить Инженерный (ИР) и дополнительные разделы.
Все проекты Студии Z500 адаптированы в соответствии с Российскими СНиП и СП. Под адаптацией понимается не только приведение всех различий в соответствие с требованиями РФ, но и предоставление доступных застройщику названия материалов.
Также, обращаем ваше внимание, что наши проекты с плоской кровлей рассчитаны под 3й снеговой регион. При необходимости мы можем внести изменения и адаптировать кровлю под любую снеговую нагрузку.
«Архитектурные решения» – это ключевой этап проектирования любого объекта, на котором решаются такие важные вопросы, как внешний облик будущего здания в зависимости от выбранной концепции, стиль оформления экстерьера и интерьера, способы подведения инженерных систем и многое другое.
Что входит в состав архитектурного проекта
- Титульный лист
- Общие данные
- Генплан застройки участка
- План кровли
- Планы этажей с точными размерами дома и его комнат
- Цветные фасады
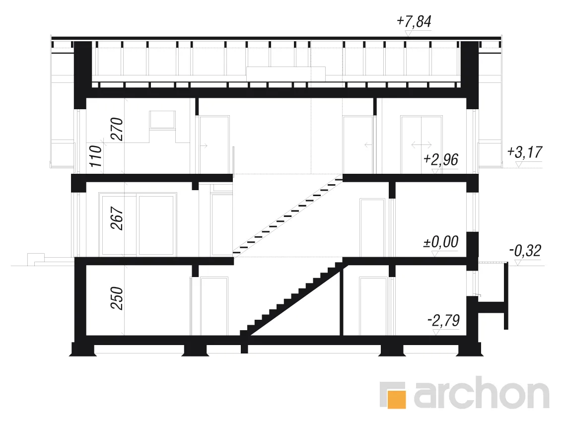
- Разрезы со всеми размерами (высоты этажей, кровли и др.)
- Цветные 3D виды будущего дома
Титульный лист проектной работы – первый лист проекта, на котором указываются все данные о проектной работе, авторе, руководителе. и техническое описание
Титульный лист проектной работы – первый лист проекта, на котором указываются все данные о проектной работе, авторе, руководителе. и техническое описание
Титульный лист проектной работы – первый лист проекта, на котором указываются все данные о проектной работе, авторе, руководителе. и техническое описание
Титульный лист проектной работы – первый лист проекта, на котором указываются все данные о проектной работе, авторе, руководителе. и техническое описание
Титульный лист проектной работы – первый лист проекта, на котором указываются все данные о проектной работе, авторе, руководителе. и техническое описание
В этой версии "Фелиции" был спроектирован цокольный этаж, проект является модификацией "Дома в фелициях (Г2)", также было увеличено пространство для родителей, создавая комфортную площадь с ванной комнатой и гардеробной. Благодаря продуманной композиции фасада дом выглядит очень эффектно и современно. В глаза бросается оригинальное остекление и перголы на входе и в саду. Яркая штукатурка, бетонная облицовка и деревянные изделия графитового цвета создают красивую, гармоничную композицию. Просторная жилая зона представляет собой открытое пространство, хорошо освещенное естественным светом, предлагающее комфортные условия для работы и семейного отдыха. На террасу можно выйти как из гостиной, так и из столовой, приглашая вас отдохнуть на свежем воздухе. Столовая с большим столом - необычайно респектабельное место в доме, здесь можно организовать вечеринку в большой компании. Удобное общение обеспечивается непосредственной близостью кухни. В центре кухни расположен большой многофункциональный остров с современной зоной для приготовления пищи, шкафами для хранения и барной стойкой для быстрого завтрака. Кухня также может похвастаться просторными рабочими поверхностями для приготовления пищи и прилегающей кладовой. Дополнительная комната и ванная были спроектированы в четко отделенной части первого этажа. Это создает комфортную зону для ночевки гостей, учебы или работы. Просторный гараж на две машины доступен из тамбура. В мансарде находятся две спальни для детей, комфортабельные апартаменты для родителей с гардеробной и ванной комнатой, а также вторая ванная комната, общая для всех членов семьи. В средней части мансарды находится мезонин с привлекательным видом на сад, который, благодаря раздвижным дверям, спроектированным по обе стороны лестницы, можно незаметно вынести наружу и отделить от ночной части. Мезонин предлагает широкий спектр возможностей для обустройства, здесь можно организовать, например, кабинет или домашнюю библиотеку. На чердаке, расположенном над гаражом, можно организовать привлекательное место для отдыха. Здесь было применено оригинальное современное остекление. В подвале мы спроектировали две полезные зоны с естественным освещением, разделенные дверью. Первая - зона отдыха, состоящая из ванной комнаты с сауной и двух помещений, где можно организовать бильярдную и домашний тренажерный зал. Вторая - подсобная зона с котельной на твердом топливе и прачечной. Этот уникальный "Дом в фелициях (Г2П)" относится к коллекции: проекты домов с подвалом, проекты домов для участка на склоне, проекты домов в современном стиле, проекты домов с мезонином.
Чтобы приобрести понравившийся товар, необходимо его заказать. Есть несколько сценариев того, как это можно сделать.
- Выбрать понравившийся товар и нажать кнопку «Заказать». При оформлении заказа заполнить форму. Вписать информацию в поля: ФИО, телефон и e-mail. Затем вам перезвонит менеджер, чтобы подтвердить ваше согласие на совершение покупки.
- Выбрать понравившийся товар и нажать кнопку «В корзину». Затем перейти в корзину и нажать «Оформить заказ». Далее заполнить форму с контактными данными и отправить заявку. С вами свяжется менеджер для дальнейшего обсуждения.
- Перейти в карточку товара и нажать «Купить в один клик». После нажатия нужно заполнить форму и отправить заявку. С вами свяжется менеджер для дальнейшего обсуждения.
- Комментарии
- ВКонтакте

















