

Типовой проект дома от Z500 включает два раздела - Архитектурный (АР) и Конструктивный (КР). По желанию заказчика в проектную документацию можно включить Инженерный (ИР) и дополнительные разделы.
Все проекты Студии Z500 адаптированы в соответствии с Российскими СНиП и СП. Под адаптацией понимается не только приведение всех различий в соответствие с требованиями РФ, но и предоставление доступных застройщику названия материалов.
Также, обращаем ваше внимание, что наши проекты с плоской кровлей рассчитаны под 3й снеговой регион. При необходимости мы можем внести изменения и адаптировать кровлю под любую снеговую нагрузку.
«Архитектурные решения» – это ключевой этап проектирования любого объекта, на котором решаются такие важные вопросы, как внешний облик будущего здания в зависимости от выбранной концепции, стиль оформления экстерьера и интерьера, способы подведения инженерных систем и многое другое.
Что входит в состав архитектурного проекта
- Титульный лист
- Общие данные
- Генплан застройки участка
- План кровли
- Планы этажей с точными размерами дома и его комнат
- Цветные фасады
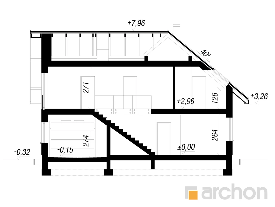
- Разрезы со всеми размерами (высоты этажей, кровли и др.)
- Цветные 3D виды будущего дома
Титульный лист проектной работы – первый лист проекта, на котором указываются все данные о проектной работе, авторе, руководителе. и техническое описание
Титульный лист проектной работы – первый лист проекта, на котором указываются все данные о проектной работе, авторе, руководителе. и техническое описание
Титульный лист проектной работы – первый лист проекта, на котором указываются все данные о проектной работе, авторе, руководителе. и техническое описание
Титульный лист проектной работы – первый лист проекта, на котором указываются все данные о проектной работе, авторе, руководителе. и техническое описание
Титульный лист проектной работы – первый лист проекта, на котором указываются все данные о проектной работе, авторе, руководителе. и техническое описание
Впечатляющий проект односемейного дома с жилой мансардой, с простым, современным корпусом и удобной функциональной планировкой, предлагающей множество возможностей для обустройства. Фасад был отделан сочетанием светлой и графитовой штукатурки. Современный стиль дома подчеркивают полностью стеклянные балюстрады. Представительская жилая зона - это место совместного отдыха обитателей дома. В уютной гостиной разместился диван с набором кресел перед домашним кинотеатром и камином, а столовая с большим столом расположена у панорамного окна, из которого открывается вид на зелень сада. Привлекательное раздвижное стеклянное окно плавно соединяет интерьер с террасой, которая окажется полезной в качестве летней зоны отдыха на открытом воздухе. Открытая кухня граничит с многофункциональным островом, а преимуществом является оптимальное количество рабочих поверхностей. Кладовая с местом для морозильной камеры, расположенная под лестницей, завершает функциональную программу кухни. У главного входа есть дополнительная комната, которую можно использовать как кабинет для удаленной работы или спальню для гостей. Программа первого этажа дополнена ванной комнатой с душевой кабиной, гардеробной, гаражом с одним парковочным местом и котельной с отдельным внешним выходом. Частная часть была спроектирована в мансарде, где находятся четыре спальни, две гардеробные рядом с комнатами, общая ванная комната и прачечная с местом для сушки и хранения вещей. Все спальни имеют естественное освещение и выходы на балконы. Представленный "ДОМ В СОН-ТРАВЕ 6 (Г)" - это проект из коллекции: проекты небольших домов, проекты современных домов и проекты домов с жилой мансардой.
Чтобы приобрести понравившийся товар, необходимо его заказать. Есть несколько сценариев того, как это можно сделать.
- Выбрать понравившийся товар и нажать кнопку «Заказать». При оформлении заказа заполнить форму. Вписать информацию в поля: ФИО, телефон и e-mail. Затем вам перезвонит менеджер, чтобы подтвердить ваше согласие на совершение покупки.
- Выбрать понравившийся товар и нажать кнопку «В корзину». Затем перейти в корзину и нажать «Оформить заказ». Далее заполнить форму с контактными данными и отправить заявку. С вами свяжется менеджер для дальнейшего обсуждения.
- Перейти в карточку товара и нажать «Купить в один клик». После нажатия нужно заполнить форму и отправить заявку. С вами свяжется менеджер для дальнейшего обсуждения.
- Комментарии
- ВКонтакте










