

Типовой проект дома от Z500 включает два раздела - Архитектурный (АР) и Конструктивный (КР). По желанию заказчика в проектную документацию можно включить Инженерный (ИР) и дополнительные разделы.
Все проекты Студии Z500 адаптированы в соответствии с Российскими СНиП и СП. Под адаптацией понимается не только приведение всех различий в соответствие с требованиями РФ, но и предоставление доступных застройщику названия материалов.
Также, обращаем ваше внимание, что наши проекты с плоской кровлей рассчитаны под 3й снеговой регион. При необходимости мы можем внести изменения и адаптировать кровлю под любую снеговую нагрузку.
«Архитектурные решения» – это ключевой этап проектирования любого объекта, на котором решаются такие важные вопросы, как внешний облик будущего здания в зависимости от выбранной концепции, стиль оформления экстерьера и интерьера, способы подведения инженерных систем и многое другое.
Что входит в состав архитектурного проекта
- Титульный лист
- Общие данные
- Генплан застройки участка
- План кровли
- Планы этажей с точными размерами дома и его комнат
- Цветные фасады
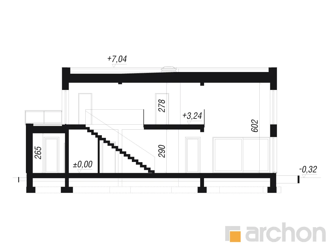
- Разрезы со всеми размерами (высоты этажей, кровли и др.)
- Цветные 3D виды будущего дома
Титульный лист проектной работы – первый лист проекта, на котором указываются все данные о проектной работе, авторе, руководителе. и техническое описание
Титульный лист проектной работы – первый лист проекта, на котором указываются все данные о проектной работе, авторе, руководителе. и техническое описание
Титульный лист проектной работы – первый лист проекта, на котором указываются все данные о проектной работе, авторе, руководителе. и техническое описание
Титульный лист проектной работы – первый лист проекта, на котором указываются все данные о проектной работе, авторе, руководителе. и техническое описание
Титульный лист проектной работы – первый лист проекта, на котором указываются все данные о проектной работе, авторе, руководителе. и техническое описание
Замечательный проект дома с плоской крышей и гаражом на две машины, со стандартным проектом механической вентиляции. Здание привлекает внимание впечатляющей формой массива и отделкой, которая прекрасно вписывается в современные тенденции. Композиция из светлой и графитовой штукатурки прекрасно сочетается с натуральным деревом, которое было использовано для выделения отдельных частей возвышения. Большое остекление придает легкость массе и обеспечивает впечатляющую открытость дома для внешнего обзора. Гараж на две машины, предусмотренный проектом, выступал перед основной линией фасада, благодаря чему входная зона приобрела уединенный характер. Интерьер дома впечатляет продуманными функциональными решениями. Большой визуальный эффект дает открытие потолка над гостиной и столовой, что подчеркивает современный характер интерьера и усиливает впечатление простора. Великолепный угловой диван приглашает к семейному отдыху в гостиной с романтическим камином. Столовая выглядит исключительно красиво, широкое стеклянное окно предоставляет место для большого стола, создавая идеальные условия для организации вечеринок в больших группах. Жилая зона плавно соединяется с террасой, над которой пергола создает ажурный занавес. В большой кухне есть современный остров, который служит удобной рабочей поверхностью для приготовления пищи, а также барная стойка. Высокая встроенная техника может быть эстетично интегрирована в кухню, а расположенная рядом кладовая позволяет легко хранить запасы продуктов. Комната, спроектированная во второй части первого этажа, представляет собой роскошную жилплощадь, имеющую удобную, полностью оборудованную ванную комнату и вместительный шкаф. Прямая связь с террасой добавляет ей привлекательности. На первом этаже также расположены туалет и сауна с прямым выходом на улицу. Рядом с лестницей расположена прачечная, а через практичный гардероб, примыкающий к тамбуру, есть возможность быстрого перехода из жилой части в гараж на две машины. На втором этаже в распоряжении жильцов две спальни с выходом на террасу, а на противоположной стороне лестницы спроектирован уединенный кабинет с выходом на балкон. Функциональная планировка первого этажа дополнена ванной комнатой и мезонином, где можно обустроить зону отдыха, а также организовать домашнюю фитнес-зону. "Дом в аромах 3 (Г2Е)" - это исключительное предложение из коллекции: готовые проекты домов, проекты многоэтажных домов, проекты современных домов, проекты домов с мезонином, проекты домов с гаражом на две машины, проекты домов с механической вентиляцией.
Чтобы приобрести понравившийся товар, необходимо его заказать. Есть несколько сценариев того, как это можно сделать.
- Выбрать понравившийся товар и нажать кнопку «Заказать». При оформлении заказа заполнить форму. Вписать информацию в поля: ФИО, телефон и e-mail. Затем вам перезвонит менеджер, чтобы подтвердить ваше согласие на совершение покупки.
- Выбрать понравившийся товар и нажать кнопку «В корзину». Затем перейти в корзину и нажать «Оформить заказ». Далее заполнить форму с контактными данными и отправить заявку. С вами свяжется менеджер для дальнейшего обсуждения.
- Перейти в карточку товара и нажать «Купить в один клик». После нажатия нужно заполнить форму и отправить заявку. С вами свяжется менеджер для дальнейшего обсуждения.
- Комментарии
- ВКонтакте















