

Типовой проект дома от Z500 включает два раздела - Архитектурный (АР) и Конструктивный (КР). По желанию заказчика в проектную документацию можно включить Инженерный (ИР) и дополнительные разделы.
Все проекты Студии Z500 адаптированы в соответствии с Российскими СНиП и СП. Под адаптацией понимается не только приведение всех различий в соответствие с требованиями РФ, но и предоставление доступных застройщику названия материалов.
Также, обращаем ваше внимание, что наши проекты с плоской кровлей рассчитаны под 3й снеговой регион. При необходимости мы можем внести изменения и адаптировать кровлю под любую снеговую нагрузку.
«Архитектурные решения» – это ключевой этап проектирования любого объекта, на котором решаются такие важные вопросы, как внешний облик будущего здания в зависимости от выбранной концепции, стиль оформления экстерьера и интерьера, способы подведения инженерных систем и многое другое.
Что входит в состав архитектурного проекта
- Титульный лист
- Общие данные
- Генплан застройки участка
- План кровли
- Планы этажей с точными размерами дома и его комнат
- Цветные фасады
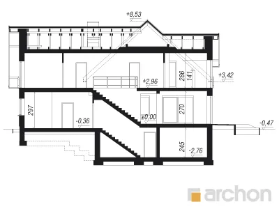
- Разрезы со всеми размерами (высоты этажей, кровли и др.)
- Цветные 3D виды будущего дома
Титульный лист проектной работы – первый лист проекта, на котором указываются все данные о проектной работе, авторе, руководителе. и техническое описание
Титульный лист проектной работы – первый лист проекта, на котором указываются все данные о проектной работе, авторе, руководителе. и техническое описание
Титульный лист проектной работы – первый лист проекта, на котором указываются все данные о проектной работе, авторе, руководителе. и техническое описание
Титульный лист проектной работы – первый лист проекта, на котором указываются все данные о проектной работе, авторе, руководителе. и техническое описание
Титульный лист проектной работы – первый лист проекта, на котором указываются все данные о проектной работе, авторе, руководителе. и техническое описание
Этот проект дома наверняка будет интересен инвесторам, планирующим строительство дома на участке с уклоном. Он пополняет нашу коллекцию современных проектов домов, а характер дома подчеркивается впечатляюще скомпонованными фасадами. Многочисленные остекления в жилой зоне обеспечивают большое количество естественного света в интерьере. Угловая терраса доступна из столовой и кухни, где в ее крытой части можно организовать уютный кофейный уголок. Большая гостиная с множеством диванов перед домашним кинотеатром и камином располагает к совместному отдыху. Привлекательно расположенная столовая вмещает большой стол, здесь можно успешно провести вечеринку с большой компанией. Через полуостров с барной стойкой столовая соединена с кухней, где мы имеем возможность использовать высокие шкафы, а угловое окно прекрасно освещает все пространство кухни, обеспечивая оптимальные условия для работы. На первом этаже также есть ванная комната с душем, а через тамбур жители имеют доступ к большому гаражу на две машины и подсобным помещением. Пространство ночной зоны в мансарде привлекательно увеличено за счет больших мансардных окон. Здесь спроектированы четыре комнаты, включая большую спальню для родителей с отдельной гардеробной. В удобно оборудованной ванной комнате также есть место для шкафа для полотенец и туалетных принадлежностей. Прачечная расположена прямо рядом с ванной комнатой. Дополнительные возможности предоставляет мансарда, назначение которой может быть адаптировано к потребностям членов семьи, например, дополнительная спальня, игровая комната для детей или комната отдыха. В подвале находится хозяйственная зона с котельной, кладовой и двумя подсобными помещениями. Представленный "Дом в орлишках (Г2ПА)" относится к категории: проекты домов с подвалом, проекты домов с гаражом на две машины, современные проекты домов.
Чтобы приобрести понравившийся товар, необходимо его заказать. Есть несколько сценариев того, как это можно сделать.
- Выбрать понравившийся товар и нажать кнопку «Заказать». При оформлении заказа заполнить форму. Вписать информацию в поля: ФИО, телефон и e-mail. Затем вам перезвонит менеджер, чтобы подтвердить ваше согласие на совершение покупки.
- Выбрать понравившийся товар и нажать кнопку «В корзину». Затем перейти в корзину и нажать «Оформить заказ». Далее заполнить форму с контактными данными и отправить заявку. С вами свяжется менеджер для дальнейшего обсуждения.
- Перейти в карточку товара и нажать «Купить в один клик». После нажатия нужно заполнить форму и отправить заявку. С вами свяжется менеджер для дальнейшего обсуждения.
- Комментарии
- ВКонтакте












