

Типовой проект дома от Z500 включает два раздела - Архитектурный (АР) и Конструктивный (КР). По желанию заказчика в проектную документацию можно включить Инженерный (ИР) и дополнительные разделы.
Все проекты Студии Z500 адаптированы в соответствии с Российскими СНиП и СП. Под адаптацией понимается не только приведение всех различий в соответствие с требованиями РФ, но и предоставление доступных застройщику названия материалов.
Также, обращаем ваше внимание, что наши проекты с плоской кровлей рассчитаны под 3й снеговой регион. При необходимости мы можем внести изменения и адаптировать кровлю под любую снеговую нагрузку.
«Архитектурные решения» – это ключевой этап проектирования любого объекта, на котором решаются такие важные вопросы, как внешний облик будущего здания в зависимости от выбранной концепции, стиль оформления экстерьера и интерьера, способы подведения инженерных систем и многое другое.
Что входит в состав архитектурного проекта
- Титульный лист
- Общие данные
- Генплан застройки участка
- План кровли
- Планы этажей с точными размерами дома и его комнат
- Цветные фасады
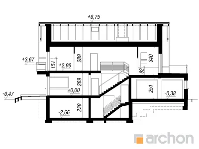
- Разрезы со всеми размерами (высоты этажей, кровли и др.)
- Цветные 3D виды будущего дома
Титульный лист проектной работы – первый лист проекта, на котором указываются все данные о проектной работе, авторе, руководителе. и техническое описание
Титульный лист проектной работы – первый лист проекта, на котором указываются все данные о проектной работе, авторе, руководителе. и техническое описание
Титульный лист проектной работы – первый лист проекта, на котором указываются все данные о проектной работе, авторе, руководителе. и техническое описание
Титульный лист проектной работы – первый лист проекта, на котором указываются все данные о проектной работе, авторе, руководителе. и техническое описание
Титульный лист проектной работы – первый лист проекта, на котором указываются все данные о проектной работе, авторе, руководителе. и техническое описание
Элегантный дизайн дома с простым корпусом, привлекающий внимание изысканной отделкой фасада и кровли террасы и входа. Большое остекление прекрасно освещает интерьеры и гармонично связывает их с садом. Жилая зона первого этажа - репрезентативное пространство, обеспечивающее отдых всем членам семьи. В просторной гостиной разместился удобный гостиный гарнитур перед домашним кинотеатром и камином, а также большой семейный стол у выхода на крытую часть террасы. Большая и функциональная кухня вмещает практичный кухонный полуостров и кладовую, а раздвижные двери позволяют ее отгородить. Подсобное помещение состоит из просторного гаража на 2 машины с местом для хранения садового инвентаря и отдельным выходом, а также помещений в подвале дома. Здесь планируется разместить котельную на твердом топливе, прачечную и комнату отдыха (домашний спортзал, стол для пинг-понга или бильярда). Двойная лестница ведет в удобную ночную зону в мансарде. В доме четыре хорошо освещенные спальни и удобная ванная комната. Главная спальня спроектирована как комната с собственной гардеробной, ванной комнатой и выходом на большую террасу над гаражом. Представленный проект относится к популярным категориям: проекты домов с входом с юга, с подвалом и проекты домов в современном стиле.
Чтобы приобрести понравившийся товар, необходимо его заказать. Есть несколько сценариев того, как это можно сделать.
- Выбрать понравившийся товар и нажать кнопку «Заказать». При оформлении заказа заполнить форму. Вписать информацию в поля: ФИО, телефон и e-mail. Затем вам перезвонит менеджер, чтобы подтвердить ваше согласие на совершение покупки.
- Выбрать понравившийся товар и нажать кнопку «В корзину». Затем перейти в корзину и нажать «Оформить заказ». Далее заполнить форму с контактными данными и отправить заявку. С вами свяжется менеджер для дальнейшего обсуждения.
- Перейти в карточку товара и нажать «Купить в один клик». После нажатия нужно заполнить форму и отправить заявку. С вами свяжется менеджер для дальнейшего обсуждения.
- Комментарии
- ВКонтакте






