

Типовой проект дома от Z500 включает два раздела - Архитектурный (АР) и Конструктивный (КР). По желанию заказчика в проектную документацию можно включить Инженерный (ИР) и дополнительные разделы.
Все проекты Студии Z500 адаптированы в соответствии с Российскими СНиП и СП. Под адаптацией понимается не только приведение всех различий в соответствие с требованиями РФ, но и предоставление доступных застройщику названия материалов.
Также, обращаем ваше внимание, что наши проекты с плоской кровлей рассчитаны под 3й снеговой регион. При необходимости мы можем внести изменения и адаптировать кровлю под любую снеговую нагрузку.
«Архитектурные решения» – это ключевой этап проектирования любого объекта, на котором решаются такие важные вопросы, как внешний облик будущего здания в зависимости от выбранной концепции, стиль оформления экстерьера и интерьера, способы подведения инженерных систем и многое другое.
Что входит в состав архитектурного проекта
- Титульный лист
- Общие данные
- Генплан застройки участка
- План кровли
- Планы этажей с точными размерами дома и его комнат
- Цветные фасады
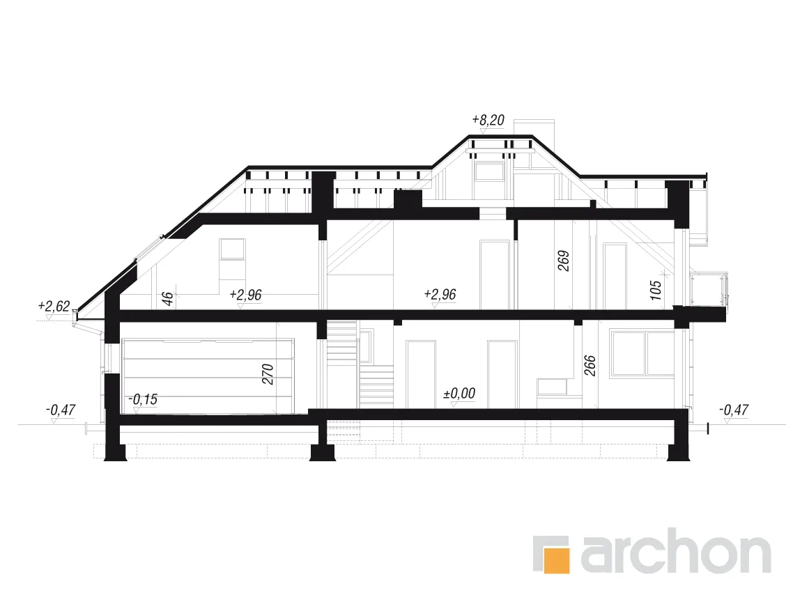
- Разрезы со всеми размерами (высоты этажей, кровли и др.)
- Цветные 3D виды будущего дома
Титульный лист проектной работы – первый лист проекта, на котором указываются все данные о проектной работе, авторе, руководителе. и техническое описание
Титульный лист проектной работы – первый лист проекта, на котором указываются все данные о проектной работе, авторе, руководителе. и техническое описание
Титульный лист проектной работы – первый лист проекта, на котором указываются все данные о проектной работе, авторе, руководителе. и техническое описание
Титульный лист проектной работы – первый лист проекта, на котором указываются все данные о проектной работе, авторе, руководителе. и техническое описание
Титульный лист проектной работы – первый лист проекта, на котором указываются все данные о проектной работе, авторе, руководителе. и техническое описание
Внушительный дом, принадлежащий к коллекции проектов домов с жилой мансардой, с просторным интерьером и функциональной планировкой. В документации "Дом в сливах 2 (Г2Е)" есть проект механической вентиляции, который позволит снизить затраты на отопление дома. Спроектированная вентиляционная установка (рекуператор) обеспечивает эффективный обмен и циркуляцию воздуха в здании, тем самым обеспечивая комфорт его использования. Стильное оформление фасада подчеркивается светлой штукатуркой, натуральной облицовкой и легкими, застекленными балюстрадами. Шатровая крыша покрыта плоской черепицей, а дополнительные мансардные окна делают помещения в мансарде просторными и естественно освещенными. Открытая жилая зона первого этажа - это многофункциональное пространство, место совместного отдыха для жителей дома. Терраса, идеальное место для отдыха на свежем воздухе. Раздвижные двери террасы плавно соединяют дом с садом, а интерьер привлекательно наполнен естественным светом. Столовая размещена в застекленном углу, ее размеры позволяют накрывать большой стол во время семейных посиделок. Удобная кухня оснащена практичной барной стойкой для завтрака и дополнена прилегающей кладовой. Кроме того, под лестницей находится подсобное помещение с местом для морозильной камеры. Программу завершает кабинет, который также может служить гостевой комнатой благодаря расположенной рядом ванной комнате с душем. В большом гараже на две машины можно разместить спортивный инвентарь или садовые инструменты. Котельная имеет отдельный выход наружу. Удобная двойная лестница ведет в частную ночную зону в мансарде. Здесь спроектированы три комфортабельные спальни, две гардеробные и просторная ванная комната с угловой ванной и душем. Над гаражом находится просторный чердак, который можно приспособить под жилые или рекреационные цели. "Дом в сливах 2 (Г2Е)" принадлежит к коллекции: проекты современных домов, проекты небольших домов, проекты домов с офисом на первом этаже и проекты домов с механической вентиляцией.
Чтобы приобрести понравившийся товар, необходимо его заказать. Есть несколько сценариев того, как это можно сделать.
- Выбрать понравившийся товар и нажать кнопку «Заказать». При оформлении заказа заполнить форму. Вписать информацию в поля: ФИО, телефон и e-mail. Затем вам перезвонит менеджер, чтобы подтвердить ваше согласие на совершение покупки.
- Выбрать понравившийся товар и нажать кнопку «В корзину». Затем перейти в корзину и нажать «Оформить заказ». Далее заполнить форму с контактными данными и отправить заявку. С вами свяжется менеджер для дальнейшего обсуждения.
- Перейти в карточку товара и нажать «Купить в один клик». После нажатия нужно заполнить форму и отправить заявку. С вами свяжется менеджер для дальнейшего обсуждения.
- Комментарии
- ВКонтакте


















