

Типовой проект дома от Z500 включает два раздела - Архитектурный (АР) и Конструктивный (КР). По желанию заказчика в проектную документацию можно включить Инженерный (ИР) и дополнительные разделы.
Все проекты Студии Z500 адаптированы в соответствии с Российскими СНиП и СП. Под адаптацией понимается не только приведение всех различий в соответствие с требованиями РФ, но и предоставление доступных застройщику названия материалов.
Также, обращаем ваше внимание, что наши проекты с плоской кровлей рассчитаны под 3й снеговой регион. При необходимости мы можем внести изменения и адаптировать кровлю под любую снеговую нагрузку.
«Архитектурные решения» – это ключевой этап проектирования любого объекта, на котором решаются такие важные вопросы, как внешний облик будущего здания в зависимости от выбранной концепции, стиль оформления экстерьера и интерьера, способы подведения инженерных систем и многое другое.
Что входит в состав архитектурного проекта
- Титульный лист
- Общие данные
- Генплан застройки участка
- План кровли
- Планы этажей с точными размерами дома и его комнат
- Цветные фасады
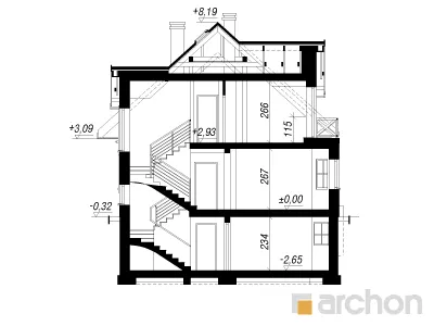
- Разрезы со всеми размерами (высоты этажей, кровли и др.)
- Цветные 3D виды будущего дома
Титульный лист проектной работы – первый лист проекта, на котором указываются все данные о проектной работе, авторе, руководителе. и техническое описание
Титульный лист проектной работы – первый лист проекта, на котором указываются все данные о проектной работе, авторе, руководителе. и техническое описание
Титульный лист проектной работы – первый лист проекта, на котором указываются все данные о проектной работе, авторе, руководителе. и техническое описание
Титульный лист проектной работы – первый лист проекта, на котором указываются все данные о проектной работе, авторе, руководителе. и техническое описание
Титульный лист проектной работы – первый лист проекта, на котором указываются все данные о проектной работе, авторе, руководителе. и техническое описание
Привлекательный проект дома с подвалом, который отличается классическим стилем отделки фасада. Расположение террасы и жилой зоны делает этот проект идеально подходящим для участков с входом с юга. Внешнее обустройство основано на стильном сочетании светлой штукатурки и натуральной облицовки фасада, а полосы вокруг окон подчеркивают его классический характер. Многочисленные остекления красиво освещают интерьер дома и открывают прекрасный вид на сад. В подвале дома была спроектирована функциональная хозяйственная зона, включающая котельную на твердом топливе с местом для хранения топлива, прачечную, кладовую и дополнительную комнату, которую можно обустроить в соответствии с текущими потребностями. Преимуществом подвалов является их естественное освещение. Светлая и представительная гостиная зона - идеальное место для проведения времени всей семьей. В просторной гостиной с комфортом разместились удобный мягкий уголок у камина и телевизор, а также большой семейный стол. На крытой террасе можно удачно организовать летний кофейный уголок, где жильцы будут с удовольствием отдыхать на свежем воздухе в любую погоду. Кухня прекрасно освещена и имеет оптимальное количество рабочих поверхностей и место для практичного стола для завтрака. При входе есть дополнительная комната, которую можно использовать в качестве кабинета или гостевой спальни благодаря расположенной рядом ванной комнате с душем. Программу первого этажа дополняет просторная гардеробная, доступная из вестибюля. Лестница с естественным освещением ведет в уютную ночную зону на чердаке. Здесь расположены три очень уютные спальни с балконами и общая ванная комната с угловой ванной, душем и двумя умывальниками. В комнате родителей есть свой гардероб, во вторую можно попасть из прихожей. Этот привлекательный проект относится к категории: проекты небольших домов, проекты домов с входом с юга, для узкого участка, с подвалом и с дополнительным кабинетом на первом этаже.
Чтобы приобрести понравившийся товар, необходимо его заказать. Есть несколько сценариев того, как это можно сделать.
- Выбрать понравившийся товар и нажать кнопку «Заказать». При оформлении заказа заполнить форму. Вписать информацию в поля: ФИО, телефон и e-mail. Затем вам перезвонит менеджер, чтобы подтвердить ваше согласие на совершение покупки.
- Выбрать понравившийся товар и нажать кнопку «В корзину». Затем перейти в корзину и нажать «Оформить заказ». Далее заполнить форму с контактными данными и отправить заявку. С вами свяжется менеджер для дальнейшего обсуждения.
- Перейти в карточку товара и нажать «Купить в один клик». После нажатия нужно заполнить форму и отправить заявку. С вами свяжется менеджер для дальнейшего обсуждения.
- Комментарии
- ВКонтакте
















