

Типовой проект дома от Z500 включает два раздела - Архитектурный (АР) и Конструктивный (КР). По желанию заказчика в проектную документацию можно включить Инженерный (ИР) и дополнительные разделы.
Все проекты Студии Z500 адаптированы в соответствии с Российскими СНиП и СП. Под адаптацией понимается не только приведение всех различий в соответствие с требованиями РФ, но и предоставление доступных застройщику названия материалов.
Также, обращаем ваше внимание, что наши проекты с плоской кровлей рассчитаны под 3й снеговой регион. При необходимости мы можем внести изменения и адаптировать кровлю под любую снеговую нагрузку.
«Архитектурные решения» – это ключевой этап проектирования любого объекта, на котором решаются такие важные вопросы, как внешний облик будущего здания в зависимости от выбранной концепции, стиль оформления экстерьера и интерьера, способы подведения инженерных систем и многое другое.
Что входит в состав архитектурного проекта
- Титульный лист
- Общие данные
- Генплан застройки участка
- План кровли
- Планы этажей с точными размерами дома и его комнат
- Цветные фасады
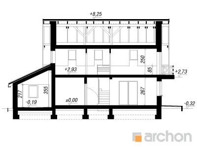
- Разрезы со всеми размерами (высоты этажей, кровли и др.)
- Цветные 3D виды будущего дома
Титульный лист проектной работы – первый лист проекта, на котором указываются все данные о проектной работе, авторе, руководителе. и техническое описание
Титульный лист проектной работы – первый лист проекта, на котором указываются все данные о проектной работе, авторе, руководителе. и техническое описание
Титульный лист проектной работы – первый лист проекта, на котором указываются все данные о проектной работе, авторе, руководителе. и техническое описание
Титульный лист проектной работы – первый лист проекта, на котором указываются все данные о проектной работе, авторе, руководителе. и техническое описание
Титульный лист проектной работы – первый лист проекта, на котором указываются все данные о проектной работе, авторе, руководителе. и техническое описание
Представляем проект небольшого дома с жилой мансардой, который отличается чрезвычайно функциональной планировкой помещений. Это интересное здание классической, компактной формы с двускатной крышей, традиционный характер которого подчеркивается отделкой и симметрией в расположении окон. Прекрасно представлен белый фасад здания с элементами облицовки из дерева и клинкерного кирпича и столярными изделиями цвета дерева. Вход в дом ведет через крытое крыльцо, поддерживаемое двумя колоннами, которые отделаны клинкерной облицовкой. Через тамбур мы попадаем в прихожую, которая соединяет комнаты светлой гостиной части дома. Здесь, хорошо освещенная естественным светом, находится большая и просторная кухня с функционально расположенными рабочими поверхностями, что обеспечивает комфортное приготовление пищи. Рядом с кухней обустроена обеденная зона с удобным обеденным столом. Остекление в гостиной открывает интерьер на угловую террасу, частично покрытую легкой деревянной перголой, которая является прекрасным местом для отдыха жильцов. На первом этаже также есть дополнительная комната, которая может служить кабинетом. К комнате примыкает удобная ванная комната с душем. Подсобное помещение состоит из светлой котельной, доступной из тамбура, и одноместного гаража с окном, выходящим в сад. Лестница, освещенная мансардным окном, ведет в мансарду в прихожую частной зоны дома. Здесь спроектированы три светлые, удачно расположенные комнаты, две из которых имеют выход на смежный большой балкон, одна из которых предназначена для спальни родителей и имеет собственную гардеробную. Все мансардные помещения дополнительно освещаются мансардными окнами. В частной зоне дома спроектирована светлая, удобная ванная комната с полным оснащением. "Дом в примулах 3" относится к категории: проекты небольших домов, проекты домов с жилой мансардой, проекты домов с кабинетом на первом этаже, проекты домов с одноместным гаражом.
Чтобы приобрести понравившийся товар, необходимо его заказать. Есть несколько сценариев того, как это можно сделать.
- Выбрать понравившийся товар и нажать кнопку «Заказать». При оформлении заказа заполнить форму. Вписать информацию в поля: ФИО, телефон и e-mail. Затем вам перезвонит менеджер, чтобы подтвердить ваше согласие на совершение покупки.
- Выбрать понравившийся товар и нажать кнопку «В корзину». Затем перейти в корзину и нажать «Оформить заказ». Далее заполнить форму с контактными данными и отправить заявку. С вами свяжется менеджер для дальнейшего обсуждения.
- Перейти в карточку товара и нажать «Купить в один клик». После нажатия нужно заполнить форму и отправить заявку. С вами свяжется менеджер для дальнейшего обсуждения.
- Комментарии
- ВКонтакте





